




מופיע על ידי Waterfront & Estate Properties
הנכס שטח הממוקם בכתובת 7900 N Federal Highway, Boca Raton, פלורידה 33487, ארצות הברית של אמריקה מוצע למכירה.7900 N Federal Highway, Boca Raton, פלורידה 33487, ארצות הברית של אמריקה מופיע עבור4,125,000 $.
עודכן בתאריך: 10 בנוב׳ 2025
4,125,000 $ USD
קרקע למכירה, 7900 N Federal Highway, Boca Raton, פלורידה 33487, ארצות הברית של אמריקה
- מספר MLSRX-11139219
- השטח בר-המכירה המינימלי
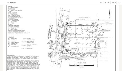
6,394 m² (68,825 ft²)
Stalmore Duncan
Beresford Realty Group
תכונות הנכס
נכס
- מיקום: גישה ליםפונה אל המיםחלוקת-משנהבעיר
מגרש/קרקע
- גדול המגרש/הקרקע:
6,394 m² (68,825 ft²) - תיאור המגרש: מבורא
- סוג האדמה: חול
מים ושייט
- מים: תעלה פניצית לאורך החוףחומת ריפ-רפ
- Boating: אין גשר קבוע
נוף
- מאפיינים: נוף לתעלה
שירות
- שירותים נוספים: חשמלביוב ציבורי
תיאור
EXCEPTIONAL DEVELOPMENT OPPORTUNITY AWAITS WITH THIS RARE WATERFRONT PARCEL. CURRENTLY ZONED LOW-DENSITY RESIDENTIAL, THE PROPERTY OFFERS FLEXIBILITY FOR MEDIUM DENSITY HOWEVER, ADDITIONAL PAPERWORK NEEDS TO BE FILED AND APPROVED BY THE CITY OF BOCA. SOUTHEAST LOTS FEATURE UNOBSTRUCTED WATER VIEWS AND DIRECT DOCK ACCESS, CREATING AN IDEAL SETTING FOR LUXURY WATERFRONT LIVING.
מיקום
7900 N Federal Highway, Boca Raton, פלורידה 33487, ארצות הברית של אמריקה